Description de l'offre
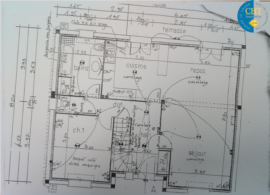
GUER, Maison T6 sur sous-sol située dans le centre-ville, proche des écoles, du collège, des médecins, de la pharmacie et de tous commerces. Cette maison est composée au rez-de-chaussée d'une entrée avec placards, d'un salon séjour avec cheminée insert exposé Est-Ouest, d'une cuisine aménagée & équipée fonctionnelle et lumineuse donnant accès à une véranda, se prologeant par une terrasse, d'une chambre, d'une salle de bains avec placards, WC. L'étage dispose d'un dégagement desservant trois chambres, d'un bureau, d'une salle d'eau avec WC et d'un dressing. Cette maison offre un sous-sol complet comprenant un garage, une buanderie et une cave. Le tout sur un terrain clos d'environ 1 010m². Nous vous proposons cette belle maison d’habitation idéalement située dans le cœur de Guer, à proximité immédiate de toutes les commodités : commerces, écoles, transports. Parfaite pour une famille ou un projet de résidence principale, cette maison allie confort, praticité et potentiel d’aménagement. Caractéristiques principales de cette maison à vendre à Guer : Points forts : Situation privilégiée en centre-ville, proche de toutes les commodités Maison avec un fort potentiel d’aménagement Espaces fonctionnels et confortables pour toute la famille Maison raccordée au tout-à-l'égout. Le montant estimé des dépenses annuelles d'énergie pour un usage standard : entre 2080 € et 2870 € - Date de référence des prix de l'énergie utilisés pour établir cette estimation : 2021, 2022, 2023. Les informations sur les risques auxquels ce bien est exposé sont disponibles sur le site Géorisques : www.georisques.gouv.fr Si vous avez des questions, n'hésitez pas à contacter l'agence immobilière CHT IMMOBILIER au 02 99 06 98 97. Vous avez un projet immobilier sur le secteur de Brocéliande ? Pour vendre, acheter ou louer une maison à Plélan le Grand, Guer, Beignon, Saint Malo de Beignon, Porcaro, Augan, Monteneuf, Concoret, Campénéac, Paimpont, Saint Péran, Iffendic, Monterfil, Montfort sur Meu, Saint Thurial, Bovel, Loutehel, Val d'Anast, Maxent, Treffendel, Saint Malon sur Mel, Baulon... contactez nous. Sept conseillers à votre service, trois vitrines à Plélan le grand, Saint Cyr Coëtquidan et Beignon et publication de nos annonces sur plus de 80 sites internet. Plus d'offres sur cht-immobilier.com
