Exclusivité
A LOUER à PLELAN LE GRAND maison de bourg 3 Chambres
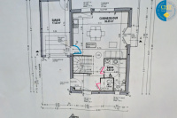
Maison 106.94 m² - 4 Pièces - Plélan-Le-Grand
A LOUER dans le centre de PLELAN LE GRAND (35 380), une maison de bourg rénovée. Cette maison est composée d'une entrée avec placard, d'un salon séjour, d'une cuisine aménagée et équipée séparée,...
