Description de l'offre
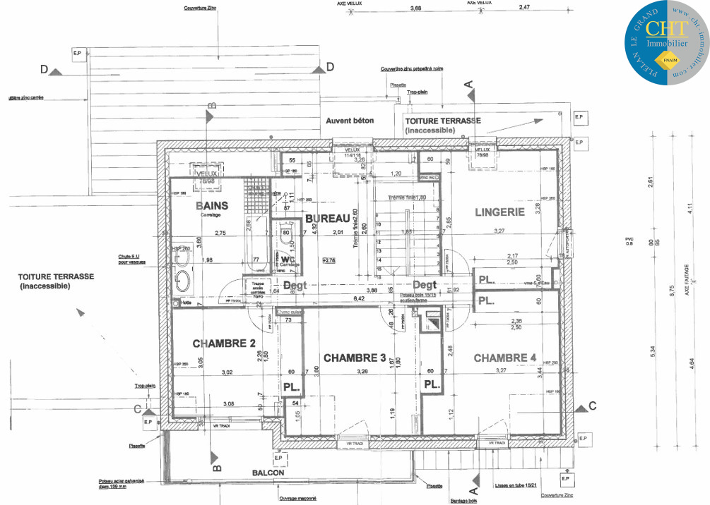
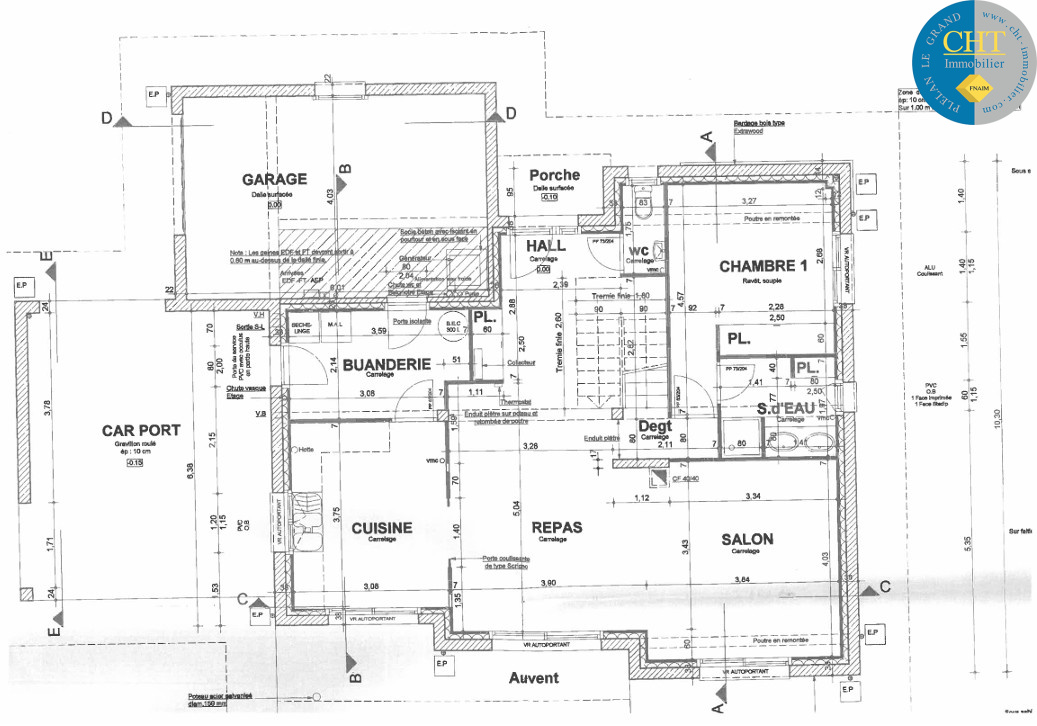
L'agence CHT IMMOBILIER vous présente cette superbe maison contemporaine de 2002, alliant performance énergétique et volumes généreux. Située en plein cœur de Guer, cette propriété est l'adresse idéale pour une famille cherchant à concilier vie urbaine et espace extérieur. Cette maison offre une distribution fluide et fonctionnelle sur deux niveaux. Elle dispose d’une vie de plain-pied au rez-de-chaussée grâce à une entrée avec placard, une cuisine aménagée et équipé donnant sur un vaste salon séjour très lumineux, une chambre confortable avec placard, accompagnée d'une salle d'eau privative, un WC indépendant, une buanderie pratique pour l'organisation quotidienne. L'étage dispose d'une mezzanine baignée de lumière, idéale pour un espace bureau ou un coin lecture, de 4 chambres supplémentaires, toutes équipées de placards intégrés, d'une salle de bains spacieuse et d'un second WC indépendant. A l’extérieur vous découvrirez un magnifique terrain clos et arboré de 1 364 m², rare en centre-ville. Plusieurs dépendances sont également présentes : un garage attenant et un carport. Le confort de vie est optimal grâce au chauffage par pompe à chaleur avec système de géothermie verticale, de grandes ouvertures pour bénéficier de l’ensoleillement maximal. DPE C, bien raccordé au tout à l’égout. L’emplacement est privilégié : Écoles, médecins, pharmacie, commerces et services de Guer accessibles à pied. UNE OPPORTUNITÉ RARE À SAISIR SANS TARDER ! Pour visiter ce bien d'exception, contactez vite l'agence CHT IMMOBILIER au 02 99 06 98 97. Les informations sur les risques auxquels ce bien est exposé sont disponibles sur le site Géorisques : "www.georisques.gouv.fr". Vous avez un projet immobilier sur le secteur de Brocéliande ? Pour vendre, acheter ou louer une maison à Plélan le Grand, Guer, Beignon, Saint Malo de Beignon, Porcaro, Augan, Monteneuf, Concoret,Campénéac, Paimpont, Saint Péran, Iffendic, Monterfil, Montfort sur Meu, Saint Thurial, Bovel, Loutehel, Val d'Anast, Maxent, Treffendel, Saint Malon sur Mel, Baulon... contactez-nous. Sept conseillers à votre service, trois vitrines à Plélan le grand, Saint Cyr Coëtquidan et Beignon et publication de nos annonces sur plus de 80 sites internet. Plus d'offres sur cht-immobilier.com
