Description de l'offre
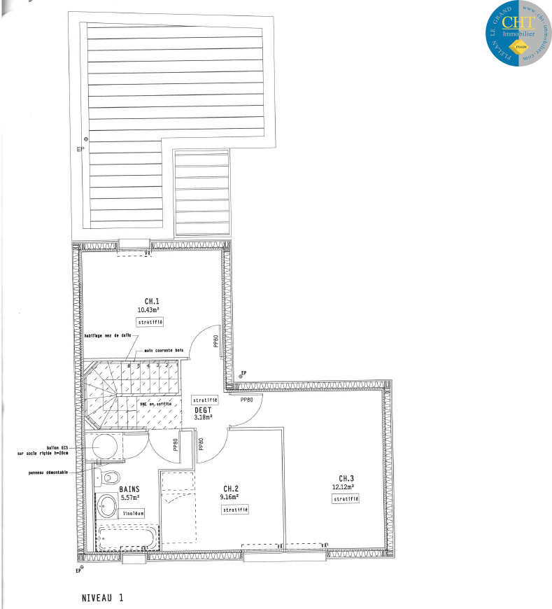
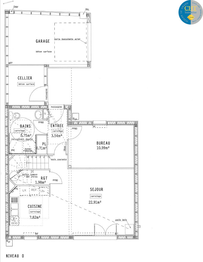
Située en centre ville de PLELAN LE GRAND dans un petit ensemble de maisons, nous vous proposons l'acquisition ce bien récent avec quatre chambres. DPE A, ultra performant en énergie, cette maison construite en 2013 est composée d'une entrée avec placard, une cuisine aménagée et équipée ouverte sur le salon séjour, une chambre et une salle d'eau avec WC. L'étage dispose d'un dégagement, de trois chambres et une salle de bains avec WC. La superficie habitable fait environ 94m². Le logement est chauffé par un poêle à pellets hydraulique qui alimente des radiateurs. A l'extérieur, le jardin totalise environ 195m², il accueille un garage avec espace buanderie. Le bien est raccordé au tout à l'égoût. Les commerces, écoles et activités sont accessibles à pieds depuis la maison jusqu'au centre de PLELAN LE GRAND, idéal pour l'autonomie d'une famille ou de jeune retraité. Le prix de mise en vente est de 222 600€ frais d'agence inclus. Les montants des dépenses d'énergie se situe dans une fourchette entre 770€ et 1080€, prix de référence : 2023. Les informations sur les risques auxquels ce bien est exposé sont disponibles sur le site Géorisques : www.georisques.gouv.fr CHT IMMOBILIER se fera un plaisir de vous renseigner si ce logement a retenu votre attention. Vous avez un projet immobilier sur le secteur de Brocéliande ? Pour vendre, acheter ou louer une maison à Plélan le Grand, Guer, Beignon, Saint Malo de Beignon, Paimpont, Maxent, Treffendel, Campénéac, Saint Malon sur Mel, Baulon... contactez nous. Sept conseillers à votre service, trois vitrines à Plélan le grand, Saint Cyr Coëtquidan et Beignon et publication de nos annonces sur plus de 80 sites internet. Plus d'offres sur www.cht-immobilier.com
