Description de l'offre
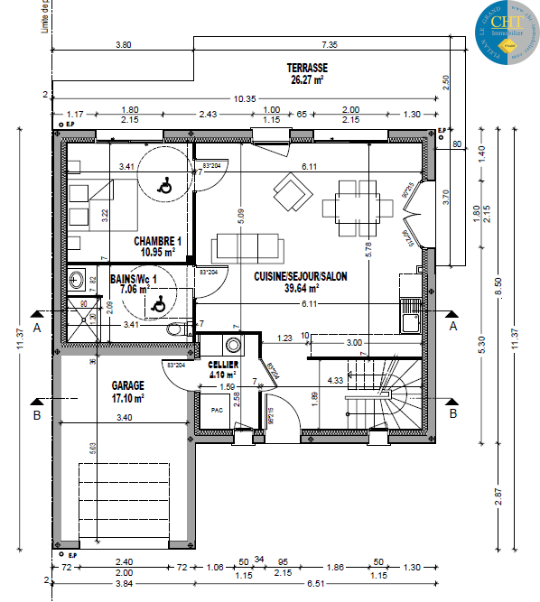
LE CONFORT DU NEUF AU CŒUR DE BROCÉLIANDE – FRAIS DE NOTAIRE RÉDUITS L'agence CHT IMMOBILIER est ravie de vous présenter cette opportunité rare : une maison contemporaine neuve, idéalement située dans le centre-bourg de Beignon. Profitez d'un cadre de vie pratique et paisible, où les commerces et les écoles sont accessibles à pied, le tout à seulement 10 minutes de GUER et de PLÉLAN-LE-GRAND. Modernité, Confort et Performance Énergétique Construite selon les dernières normes RT 2020, cette maison allie élégance architecturale et économies d'énergie. Elle propose une distribution fluide et lumineuse :Le Rez-de-Chaussée (Vie de Plain-pied) se compose d'une entrée accueillante ouvrant sur une vaste pièce de vie lumineuse (39m2), d'une cuisine moderne, entièrement aménagée et équipée, d'une chambre de plain-pied avec sa salle d'eau fonctionnelle attenante et d'un cellier pratique pour le stockage et l'espace technique.L’Étage (Espace Nuit) dispose d'un dégagement desservant trois chambres lumineuses et d'une salle de bains familiale avec WC intégré. Extérieurs et Dépendances La maison est édifiée sur un terrain d'environ 262 m², clôturé sur trois côtés, offrant un espace extérieur sécurisé et facile d'entretien pour vos moments de détente. Garage attenant : Un espace indispensable pour votre véhicule ou du rangement supplémentaire. Les Avantages Exceptionnels de ce Bien : Maison Neuve : Posez vos valises sans aucun travaux à prévoir. Économies garanties : Isolation haute performance (RT 2020) pour des factures d'énergie maîtrisées. Frais Réduits : Bénéficiez de frais de notaire réduits et d'honoraires d'agence avantageux. Emplacement N°1 : Tout à pied au sein d'une commune dynamique aux portes de la forêt de Brocéliande. UNE OPPORTUNITÉ UNIQUE SUR LE MARCHÉ ACTUEL ! Ne laissez pas passer la chance de devenir propriétaire d'une maison neuve avec des conditions financières privilégiées. Ce bien représente une opportunité rare : une maison neuve avec en plus des avantages financiers tels que des honoraires d’agence et des frais de notaire réduits. Pour plus d’informations ou pour organiser une visite, n’hésitez pas à contacter CHT Immobilier au 02 99 06 98 97. Nous serons ravis de vous accompagner dans votre projet immobilier ! Les informations sur les risques auxquels ce bien est exposé sont disponibles sur le site Géorisques : www.georisques.gouv.fr. Vous avez un projet immobilier sur le secteur de Brocéliande ? Pour vendre, acheter ou louer une maison à Plélan le Grand, Guer, Beignon, Saint Malo de Beignon, Porcaro, Augan, Monteneuf, Concoret, Campénéac, Paimpont, Saint Péran, Iffendic, Monterfil, Montfort sur Meu, Saint Thurial, Bovel, Loutehel, Val d'Anast, Maxent, Treffendel, Saint Malon sur Mel, Baulon... contactez nous. Sept conseillers à votre service, trois vitrines à Plélan le grand, Saint Cyr Coëtquidan et Beignon et publication de nos annonces sur plus de 80 sites internet. Plus d'offres sur cht-immobilier.com
