Description de l'offre
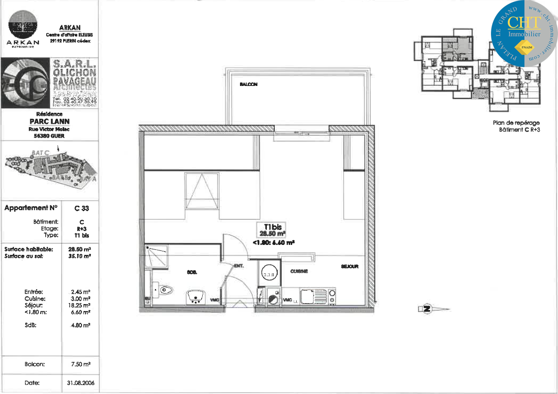
A LOUER A GUER : Studio situé au 3ème et dernier étage avec ascenseur au sein d'une résidence d'habitation sécurisée en centre ville dans un cadre verdoyant, composé d'une entrée, une pièce de vie avec coin cuisine et espace nuit, une salle d'eau avec WC ainsi qu'un balcon. En dépendance : une place de parking extérieure privative. Le loyer est de 330€ + 30€ de provision sur charges d'entretien des parties communes. Ce bien est disponible au 25 novembre 2025. Montant estimé des dépenses annuelles d'énergie pour un usage standard : entre 560€ et 800€. Date de référence des prix de l'énergie utilisés pour établir cette estimation : 2021, 2022, 2023 Les informations sur les risques auxquels ce bien est exposé sont disponibles sur le site Géorisques : www.georisques.gouv.fr.Vous avez un projet immobilier dans le secteur de Brocéliande ? Pour vendre, acheter ou louer une maison à Plélan-le-Grand, à Guer, à Beignon, à Saint-Malo-de-Beignon, à Paimpont, à Maxent, à Treffendel, à Campénéac, à Saint-Malon-sur-Mel, à Baulon…, contactez-nous. Sept conseillers à votre service, trois vitrines à Plélan-le-Grand, Saint-Cyr-Coëtquidan et Beignon et publication de nos annonces sur plus de 70 sites internet.
