Description de l'offre
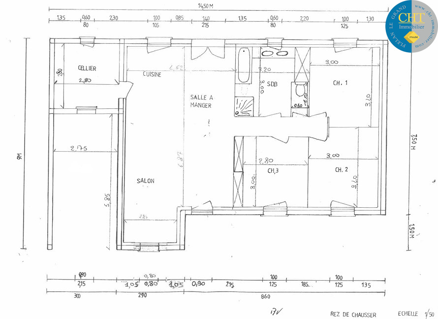
LE CONFORT ET LA TRANQUILLITÉ À 5 MINUTES DE PLÉLAN-LE-GRAND L'agence CHT IMMOBILIER est ravie de vous présenter cette charmante maison individuelle de plain-pied, construite en 2006, située dans le bourg de Maxent. Idéalement placée à seulement 5 km de Plélan-le-Grand, cette maison offre un cadre de vie familial privilégié, à proximité immédiate des écoles et des commerces. Un Intérieur Fonctionnel et Lumineux D'une superficie intérieure d'environ 100 m², cette maison a été conçue pour une vie de famille fluide et confortable. Cette maison de plain-pied est composée d'une entrée avec placard, une cuisine aménagée et équipée ouverte sur le salon séjour (picèce de vie d'environ 45.5 m² ), d'une arrière-cuisine pratique pour le stockage et la buanderie. Cette maison dispose d'un espace Nuit composé de trois chambres spacieuses et une salle de bain et WC indépendant. Confort thermique : La maison est équipée d'une pompe à chaleur récente, garantissant des économies d'énergie, et de fenêtres en double vitrage assurant une parfaite isolation phonique et thermique. Jardin et Environnement La propriété s'étend sur un beau terrain d'environ 671 m², offrant un espace extérieur clos et idéal pour les jeux d'enfants ou la création d'un potager. Les atouts techniques : Assainissement : Maison raccordée au tout-à-l'égout. Accessibilité : Configuration de plain-pied, rare sur le marché. Localisation : Secteur calme dans le bourg, limitant les déplacements en voiture pour le quotidien. Localisation Stratégique : Plélan-le-Grand : 5 minutes (5 km) et Guer : 10 minutes, Rennes : Accès rapide par l'axe N24. UNE OPPORTUNITÉ IDÉALE POUR VOTRE FAMILLE ! Contactez rapidement CHT IMMOBILIER au 02 99 06 98 97 pour planifier une visite et découvrir votre futur chez-vous. Les informations sur les risques auxquels ce bien est exposé sont disponibles sur le site Géorisques : www.georisques.gouv.fr. Vous avez un projet immobilier sur le secteur de Brocéliande ? Pour vendre, acheter ou louer une maison à Plélan le Grand, Guer, Beignon, Saint Malo de Beignon, Porcaro, Augan, Monteneuf, Concoret, Campénéac, Paimpont, Saint Péran, Iffendic, Monterfil, Montfort sur Meu, Saint Thurial, Bovel, Loutehel, Val d'Anast, Maxent, Treffendel, Saint Malon sur Mel, Baulon... contactez nous. Sept conseillers à votre service, trois vitrines à Plélan le grand, Saint Cyr Coëtquidan et Beignon et publication de nos annonces sur plus de 80 sites internet. Plus d'offres sur www.cht-immobilier.com
