Exclusivité
Coup de coeur
Magnifique longère en pierres avec terrain de 7 400m² et dépendances
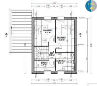
Maison 114.55 m² - 5 Pièces - Plélan-Le-Grand
L'agence CHT IMMOBILIER vous présente cette magnifique longère indépendante en pierres, nichée au cœur d'un environnement préservé à LOUTEHEL entre GUER et PLELAN LE GRAND. Située au bout d'une...
